Тубчен Гомпа — буддийский храм школы сакья и главный дукханг (зал собраний) королевства Ло, расположенный в историческом центре Ло-Мантанга. Монастырь был построен в 1468—1472 годах при покровительстве третьего правителя Ло — Ташигона, и известен настенными росписями в неварском стиле XV века, а также как место проведения трехлетнего религиозного собора 1472−1475 годов.
Навигация по статье
Где находится · История храма · Что означает · Архитектура и планировка · Иконография · Настенные росписи · Сохранность и реставрация · Роль в системе монастырей · FAQ
В отличие от других монастырей Ло-Мантанга, Тубчен задумывался как публичное пространство — место собраний, дискуссий и коллективной религиозной жизни. Его архитектура, иконография и планировка подчинены именно этой функции. В статье рассматривается, как эта роль отразилась в структуре храма, его художественном оформлении и месте в системе монастырей столицы королевства Ло.
Для понимания исторического и пространственного контекста города в целом см. материал о Ло-Мантанге — столице королевства Ло.
Тубчен Лакханг входит в ансамбль монастырей внутри крепостной стены Ло-Мантанга, сформировавший религиозное ядро столицы. О структуре этого ансамбля и роли триады монастырей — в отдельном обзоре о системе монастырей Ло-Мантанга.
Географическое положение и место в структуре Ло-Мантанга
Тубчен Гомпа — справочные данные
Название: Тубчен Гомпа
Тибетское ритуальное название: Thub-chen rgyal-ba’i pho-brang
Тип: дукханг (соборный зал собраний)
Расположение: Ло-Мантанг, Верхний Мустанг, Непал
Высота: около 3 820 м
Школа буддизма: сакья
Основание: 1468 г.
Завершение строительства: 1472 г.
Покровитель: Ташигон (bKra-shis-mgon), третий правитель Ло
Ключевое событие: религиозный совет 1472–1475 гг.
Первоначальная структура: вероятно 2–3 этажа (утрачены)
Статус: действующий храм, объект культурного наследия
Тубчен Гомпа расположен внутри крепостной стены Ло-Мантанга, в историческом ядре города, где формировалась сакральная и административная структура столицы королевства Ло. Монастырь находится к югу от Джампа Лакханга, построенного в 1447 году, на небольшой дистанции, позволяющей воспринимать оба храма как части единого ансамбля, а не как изолированные объекты. Такое расположение не случайно и отражает продуманную логику градостроительства позднего XV века.
Близость Тубчена к королевскому дворцу подчеркивает его статус соборного храма. В отличие от более камерных или специализированных монастырей, Тубчен изначально проектировался как пространство публичных собраний, религиозных советов и коллективной практики, что требовало как символической, так и физической близости к центру светской власти.
Близость Тубчена к королевскому дворцу подчеркивает его статус соборного храма. В отличие от более камерных или специализированных монастырей, Тубчен изначально проектировался как пространство публичных собраний, религиозных советов и коллективной практики, что требовало как символической, так и физической близости к центру светской власти.
Пространство вокруг Тубчена было изначально организовано с учетом ритуального обхода: к югу и западу от монастыря расположены две группы чортенов (тибетских ступ, культовых сооружений буддизма, вокруг которого совершают обход), возведенных, по всей видимости, вскоре после завершения строительства храма. Южная группа представляет собой канонический набор из восьми чортенов, западная — четыре крупных сооружения, последовательность которых отличается от классической схемы. Эти чортены обозначают путь коры — ритуального обхода вокруг святыни.
Архитектурный анализ показывает, что чортены были установлены до того, как вокруг монастыря выросла плотная жилая застройка. Первоначальная пространственная концепция предполагала значительно более открытое окружение, соответствующее монументальности самого храма. Со временем свободные участки были заняты жилыми домами, что привело к нынешнему тесному характеру городской застройки вокруг Тубчена.
Входная дверь монастыря обращена на восток, что соответствует традиционной ориентации тибетских храмов. Однако в отличие от большинства сакральных сооружений региона, вход в Тубчен ведет вниз: первоначальный уровень улицы находился на 1,6 метра ниже современного. Это объясняется постепенным повышением уровня земли вокруг храма за счет наслоений строительного мусора и разрушенных конструкций верхних этажей, обрушившихся в результате землетрясений.
Основание монастыря и исторический контекст
Строительство Тубчен Гомпы было инициировано в 1468 году третьим правителем королевства Ло — Ташигоном (bKra-shis-mgon), сыном Агона Зангпо, основателя Джампа Лакханга. К началу работ Агон Зангпо, вероятно, уже передал сыну часть властных полномочий, сохранив духовное влияние. Строительство завершилось к 1472 году.
В новом храме был проведен трехлетний религиозный собор, посвященный буддийским исследованиям и диспутам. Собор стал крупнейшим интеллектуальным событием в истории Ло. По свидетельствам источников, трехдневная инаугурационная речь собрала более 900 участников — монахов, ученых и представителей аристократии из разных регионов тибетского мира. Масштаб встречи показывает стремление Ташигона утвердить Ло-Мантанг как значимый буддийский центр.
Тубчен был построен примерно через 25 лет после Джампа Лакханга и стал первым крупным архитектурным достижением Ташигона как самостоятельного правителя. Оба монастыря задумывались и реализовывались одной группой заказчиков, а также, вероятно, одними и теми же мастерами и художниками. Однако они не являются копиями друг друга, а дополняют друг друга по концепции, дизайну и функциям.
В новом храме был проведен трехлетний религиозный собор, посвященный буддийским исследованиям и диспутам. Собор стал крупнейшим интеллектуальным событием в истории Ло. По свидетельствам источников, трехдневная инаугурационная речь собрала более 900 участников — монахов, ученых и представителей аристократии из разных регионов тибетского мира. Масштаб встречи показывает стремление Ташигона утвердить Ло-Мантанг как значимый буддийский центр.
Тубчен был построен примерно через 25 лет после Джампа Лакханга и стал первым крупным архитектурным достижением Ташигона как самостоятельного правителя. Оба монастыря задумывались и реализовывались одной группой заказчиков, а также, вероятно, одними и теми же мастерами и художниками. Однако они не являются копиями друг друга, а дополняют друг друга по концепции, дизайну и функциям.
Что означает «Тубчен»: Будда Шакьямуни и философия пространства
Понимание полного названия храма помогает осмыслить его функцию в Ло-Мантанге и королевстве Ло.
В большинстве русскоязычных и англоязычных источников монастырь упоминается как Тубчен Гомпа или Тубчен Лакханг (Thubchen Gompa / Thubchen Lhakang) — это устоявшееся и узнаваемое название, под которым храм известен путешественникам и исследователям. Однако полное ритуальное название монастыря в тибетской традиции звучит как Thub-chen rgyal-ba'i pho-brang (Тубчен Гьялвэ Пходранг), что значительно глубже по смыслу, чем простое обозначение места.
Thub-chen (Тубчен) переводится как «Великий Мудрец» — это один из классических эпитетов Будды Шакьямуни, исторического основателя буддийского учения. В отличие от Майтреи (будды грядущего), Шакьямуни — это будда нынешнего мирового периода, тот, кто уже пришел, уже учил, уже достиг пробуждения и передал методы освобождения от страданий.
Rgyal-ba означает «Победоносный» — еще одно имя Будды, указывающее на победу над неведением и циклом перерождений.
Pho-brang — это дворец, резиденция, обитель. В сакральном контексте это пространство, где присутствует божество, где реализовано учение, где буддизм существует как живая структура.
Таким образом, полное название Thub-chen rgyal-ba'i pho-brang можно перевести как «Дворец Победоносного Великого Мудреца» или «Обитель Будды — Великого Победителя». Это не просто храм, а пространство, где воплощена философская сторона буддизма — через учение, слово, собрание, диспут, коллективную практику.
В большинстве русскоязычных и англоязычных источников монастырь упоминается как Тубчен Гомпа или Тубчен Лакханг (Thubchen Gompa / Thubchen Lhakang) — это устоявшееся и узнаваемое название, под которым храм известен путешественникам и исследователям. Однако полное ритуальное название монастыря в тибетской традиции звучит как Thub-chen rgyal-ba'i pho-brang (Тубчен Гьялвэ Пходранг), что значительно глубже по смыслу, чем простое обозначение места.
Thub-chen (Тубчен) переводится как «Великий Мудрец» — это один из классических эпитетов Будды Шакьямуни, исторического основателя буддийского учения. В отличие от Майтреи (будды грядущего), Шакьямуни — это будда нынешнего мирового периода, тот, кто уже пришел, уже учил, уже достиг пробуждения и передал методы освобождения от страданий.
Rgyal-ba означает «Победоносный» — еще одно имя Будды, указывающее на победу над неведением и циклом перерождений.
Pho-brang — это дворец, резиденция, обитель. В сакральном контексте это пространство, где присутствует божество, где реализовано учение, где буддизм существует как живая структура.
Таким образом, полное название Thub-chen rgyal-ba'i pho-brang можно перевести как «Дворец Победоносного Великого Мудреца» или «Обитель Будды — Великого Победителя». Это не просто храм, а пространство, где воплощена философская сторона буддизма — через учение, слово, собрание, диспут, коллективную практику.
За привычным сокращением «Тубчен» скрывается гораздо более сложный смысл: это главный соборный зал королевства Ло, предназначенный для коллективного постижения дхармы.
Архитектура и пространственная организация
Тубчен Гомпа построен из традиционных для региона материалов. Стены сложены из высушенных на солнце глиняных кирпичей, установленных на каменное основание, толщина стен составляет около 1,5 метров. Внутренние поверхности покрыты глиняной штукатуркой, поверх которой нанесены настенные росписи. Полы выполнены из материала ака — смеси измельченного камня и глины. Колонны и балки изготовлены из дерева пагсам (тиб. dPag-bsam-shing), которое в тибетской традиции символически называют «древом исполнения желаний».
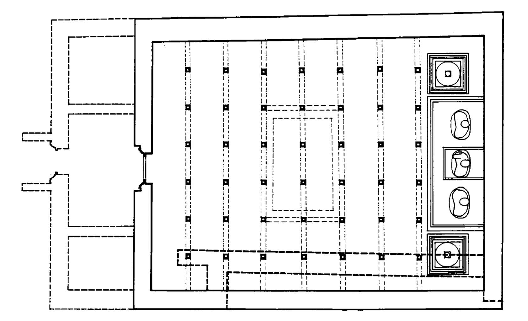
Архитектура монастыря полностью подчинена его функции дукханга — большого зала собраний. Пространство организовано вокруг открытого центрального объема, рассчитанного на одновременное присутствие большого числа монахов. Изначально храм имел почти квадратную планировку с высоким главным залом и алтарной платформой, вынесенной к западной стене. Такая композиция характерна для столичных храмов Центрального и Юго-Западного Тибета и подчеркивает соборный характер Тубчена.
Архитектура монастыря полностью подчинена его функции дукханга — большого зала собраний. Пространство организовано вокруг открытого центрального объема, рассчитанного на одновременное присутствие большого числа монахов. Изначально храм имел почти квадратную планировку с высоким главным залом и алтарной платформой, вынесенной к западной стене. Такая композиция характерна для столичных храмов Центрального и Юго-Западного Тибета и подчеркивает соборный характер Тубчена.
Монументальность зала усиливается высотой: от пола до потолочных балок — около 7,6 метров, до светового проема — около 9 метров. В центре потолка расположено световое окно, обрамленное квадратом из 36 резных львиных голов — выразительный декоративный и символический элемент интерьера.
Изначально над главным залом существовал как минимум один, а возможно, два дополнительных этажа. Они использовались как жилые помещения и кухни для монахов. Сегодня об этом напоминают лишь фрагменты стен на южной и западной сторонах крыши. Верхние этажи были утрачены, вероятно, в результате землетрясений в XVI—XVII веках. В то же время крыша над западной алтарной платформой раньше была заметно выше нынешней.
Современные размеры главного зала составляют примерно 28,2 метра в длину и 18,7 метра в ширину. Входной зал (гокханг) является более поздним добавлением и отсутствовал в первоначальной композиции храма.
Изначально над главным залом существовал как минимум один, а возможно, два дополнительных этажа. Они использовались как жилые помещения и кухни для монахов. Сегодня об этом напоминают лишь фрагменты стен на южной и западной сторонах крыши. Верхние этажи были утрачены, вероятно, в результате землетрясений в XVI—XVII веках. В то же время крыша над западной алтарной платформой раньше была заметно выше нынешней.
Современные размеры главного зала составляют примерно 28,2 метра в длину и 18,7 метра в ширину. Входной зал (гокханг) является более поздним добавлением и отсутствовал в первоначальной композиции храма.
Колонная система и изменения планировки
После строительства внутреннее пространство дукханга поддерживалось 42 колоннами, организованными в шесть рядов по семь. Эта строгая симметричная система соответствовала статусу Тубчена как главного соборного храма королевства Ло.
Со временем северная стена здания обрушилась, вероятно, в результате землетрясения. Точная дата этого события неизвестна, однако в 1815 году была проведена реконструкция. Новую стену возвели со сдвигом внутрь на один пролет, из-за чего один ряд колонн был утрачен. В результате сегодня в зале сохранилось 35 колонн.
Со временем северная стена здания обрушилась, вероятно, в результате землетрясения. Точная дата этого события неизвестна, однако в 1815 году была проведена реконструкция. Новую стену возвели со сдвигом внутрь на один пролет, из-за чего один ряд колонн был утрачен. В результате сегодня в зале сохранилось 35 колонн.
Эта перестройка нарушила первоначальную квадратную симметрию пространства. При этом небольшой участок старой северной стены длиной около 5,4 метра сохранился. На нем до сих пор видны две оригинальные настенные росписи XV века крупного формата. Остальная часть стены была заново оштукатурена, и росписи на ней относятся к более позднему времени — XIX—XX векам, что заметно по качеству и стилю исполнения.
Иконография внутреннего пространства
Настенные росписи Тубчена передают философскую сторону буддизма школы сакья. Здесь нет сложных тантрических мандал, как в Джампа Лхакханге. Пространство заполнено спокойными, уравновешенными образами будд и бодхисаттв — визуальным рассказом о пути мудрости, сострадания и постепенного постижения учения.
Интерьер организован в соответствии с функцией дукханга — зала собраний. Пространство рассчитано на коллективную практику: ряды монахов располагались лицом друг к другу, под прямым углом к алтарной стене. В этом Тубчен принципиально отличается от храмов медитативного типа, где архитектура подчинена индивидуальной практике.
Входная стена играет роль смыслового порога. По обе стороны от двери изображены шесть бодхисаттв, а над входом — Будда Вайрочана в жесте приведения в движение колеса учения. Эти росписи относятся к XV веку и формируют первое восприятие зала: входящий сразу оказывается включен в упорядоченное, космологически выстроенное пространство. Между крупными фигурами размещены ряды небольших изображений будд, организованные в регистры.
Интерьер организован в соответствии с функцией дукханга — зала собраний. Пространство рассчитано на коллективную практику: ряды монахов располагались лицом друг к другу, под прямым углом к алтарной стене. В этом Тубчен принципиально отличается от храмов медитативного типа, где архитектура подчинена индивидуальной практике.
Входная стена играет роль смыслового порога. По обе стороны от двери изображены шесть бодхисаттв, а над входом — Будда Вайрочана в жесте приведения в движение колеса учения. Эти росписи относятся к XV веку и формируют первое восприятие зала: входящий сразу оказывается включен в упорядоченное, космологически выстроенное пространство. Между крупными фигурами размещены ряды небольших изображений будд, организованные в регистры.
Левая стена разворачивает тему буддийского учения во времени. Здесь представлены восемь крупных фигур — от бодхисаттвы и татхагат до Будды Шакьямуни, включенного в более широкий ряд форм пробуждения. Все персонажи изображены в мирных позах, окруженные множеством малых будд. Эти росписи также относятся к оригинальному циклу XV века и отражают художественную традицию школы сакья.
Композиционным центром интерьера служит западная стена с основной скульптурной группой. Здесь размещены Авалокитешвара (Ченрезиг), Будда Шакьямуни, Манджушри и Падмасамбхава. Вместе они объединяют ключевые элементы буддийского пути — сострадание, учение, мудрость и передачу традиции. Скульптуры относятся к более позднему периоду и были добавлены после завершения первоначального цикла росписей.
У входа размещены локапалы — защитники сторон света, обозначающие границу между внешним миром и сакральным пространством храма. Эти статуи относятся к более позднему этапу, связанному с оформлением входного зала.
Композиционным центром интерьера служит западная стена с основной скульптурной группой. Здесь размещены Авалокитешвара (Ченрезиг), Будда Шакьямуни, Манджушри и Падмасамбхава. Вместе они объединяют ключевые элементы буддийского пути — сострадание, учение, мудрость и передачу традиции. Скульптуры относятся к более позднему периоду и были добавлены после завершения первоначального цикла росписей.
У входа размещены локапалы — защитники сторон света, обозначающие границу между внешним миром и сакральным пространством храма. Эти статуи относятся к более позднему этапу, связанному с оформлением входного зала.
Настенные росписи: техника и стиль
Настенные росписи Тубчен Гомпы выполнены в технике secco — росписи по сухой штукатурке. Это традиционный для Тибета метод, при котором изображения наносятся не на влажную поверхность, а на уже высохший слой стены. Такая техника требует высокой точности и делает росписи особенно уязвимыми к влаге и перепадам температуры.
Подготовка стен включала несколько этапов. Сначала наносился тонкий слой желтой глины с примесью песка или мелкого гравия, затем — второй слой серой земли, смешанной с коровьим навозом, травой и измельченными частицами салиграмов (ископаемых аммонитов). Поверх этого укладывался финишный слой из порошка известняка, смешанного с клеем из кипяченых шкур яков. Общая толщина штукатурки составляла около 4 сантиметров.
Краски изготавливались из природных минералов — малахита, азурита и золота. Пигменты долго промывались и очищались, прежде чем их использовали в работе. Благодаря этому росписи отличались насыщенными цветами и сохраняли глубину оттенков даже при ограниченной палитре. Золото применялось точечно — для орнаментов, нимбов и деталей одежды.
Большая часть росписей Тубчена относится к XV веку и выполнена в неварском стиле, сформировавшемся в долине Катманду. Этот стиль узнаваем по тщательной проработке форм, ясной композиции и гармоничному использованию цвета. Лучше всего росписи сохранились на восточной и южной стенах, где они до сих пор производят цельное и выразительное впечатление.
Подготовка стен включала несколько этапов. Сначала наносился тонкий слой желтой глины с примесью песка или мелкого гравия, затем — второй слой серой земли, смешанной с коровьим навозом, травой и измельченными частицами салиграмов (ископаемых аммонитов). Поверх этого укладывался финишный слой из порошка известняка, смешанного с клеем из кипяченых шкур яков. Общая толщина штукатурки составляла около 4 сантиметров.
Краски изготавливались из природных минералов — малахита, азурита и золота. Пигменты долго промывались и очищались, прежде чем их использовали в работе. Благодаря этому росписи отличались насыщенными цветами и сохраняли глубину оттенков даже при ограниченной палитре. Золото применялось точечно — для орнаментов, нимбов и деталей одежды.
Большая часть росписей Тубчена относится к XV веку и выполнена в неварском стиле, сформировавшемся в долине Катманду. Этот стиль узнаваем по тщательной проработке форм, ясной композиции и гармоничному использованию цвета. Лучше всего росписи сохранились на восточной и южной стенах, где они до сих пор производят цельное и выразительное впечатление.
Северная стена была перестроена в 1815 году после обрушения. Она содержит росписи разных периодов — от XVI до XX века, которые заметно отличаются по качеству и стилю от оригинального цикла. При этом на небольшом уцелевшем участке старой стены сохранились две монументальные композиции XV века, которые дают представление о масштабе и уровне первоначального замысла.
В отдельных деталях — прежде всего в позах и жестах некоторых фигур Будды — прослеживается влияние китайской художественной традиции. Для тибетского монастырского искусства такие элементы встречаются редко и подчеркивают открытость культурных связей Ло-Мантанга в XV веке.
На протяжении столетий росписи серьезно пострадали от влаги и разрушения штукатурки. Часть нижнего фриза была утрачена в ходе неудачных ремонтных работ. Только в конце XX века начались систематические меры по сохранению настенной живописи, позволившие стабилизировать состояние памятника.
В отдельных деталях — прежде всего в позах и жестах некоторых фигур Будды — прослеживается влияние китайской художественной традиции. Для тибетского монастырского искусства такие элементы встречаются редко и подчеркивают открытость культурных связей Ло-Мантанга в XV веке.
На протяжении столетий росписи серьезно пострадали от влаги и разрушения штукатурки. Часть нижнего фриза была утрачена в ходе неудачных ремонтных работ. Только в конце XX века начались систематические меры по сохранению настенной живописи, позволившие стабилизировать состояние памятника.
Реставрация и сохранность памятника
С конца 1990-х годов в Тубчен Гомпе ведутся планомерные работы по сохранению памятника. Проекты реализуются при поддержке Американского Гималайского фонда (American Himalayan Foundation) и Фонда короля Махендры по охране природы (King Mahendra Trust for Nature Conservation) в рамках программ Annapurna Conservation Area. Эти инициативы обеспечили финансирование, техническую экспертизу и долгосрочный подход к сохранению монастыря.
Основной принцип работ заключался в сохранении подлинного материала без попыток стилистического «восстановления» утраченных элементов. Усилия были сосредоточены на очистке и укреплении настенных росписей, стабилизации штукатурки и защите архитектурных конструкций от дальнейшего разрушения.
Важной частью проекта стало обучение местных мастеров и участие жителей Ло-Мантанга в реставрационных работах. Такой подход позволил не только сохранить памятник, но и передать навыки традиционных техник следующему поколению, сделав процесс сохранения частью жизни местного сообщества.
Вопрос о том, следует ли восполнять утраченные фрагменты росписей, остается предметом обсуждения. С одной стороны, классические принципы консервации предполагают сохранение объекта в его нынешнем состоянии без реконструкций. С другой — для местного населения важна визуальная и ритуальная целостность храма. На практике был выбран компромиссный путь, учитывающий как международные стандарты, так и локальный культурный контекст.
Важной частью проекта стало обучение местных мастеров и участие жителей Ло-Мантанга в реставрационных работах. Такой подход позволил не только сохранить памятник, но и передать навыки традиционных техник следующему поколению, сделав процесс сохранения частью жизни местного сообщества.
Вопрос о том, следует ли восполнять утраченные фрагменты росписей, остается предметом обсуждения. С одной стороны, классические принципы консервации предполагают сохранение объекта в его нынешнем состоянии без реконструкций. С другой — для местного населения важна визуальная и ритуальная целостность храма. На практике был выбран компромиссный путь, учитывающий как международные стандарты, так и локальный культурный контекст.
Роль Тубчен Гомпы в религиозной структуре Ло-Мантанга
Тубчен Гомпа входит в триаду главных монастырей Ло-Мантанга вместе с Джампа Лхакхангом и Чёде Гомпой. О религиозной структуре столицы королевства Ло подробно — в материале о системе монастырей Ло-Мантанга >.
Внутри этой триады Тубчен занимает роль соборного дукханга — зала собраний, рассчитанного на коллективную практику и публичные службы. Его иконография отражает философский аспект махаянского буддизма: стены украшены спокойными, элегантными изображениями будд и бодхисаттв, представляющими традиционное видение учения, в отличие от эзотерической, тантрической образности Джампы.
Ключевое отличие от Джампа Лхакханга связано с функцией пространства: Джампа задуман как лхакханг — храм-часовня, организованный вокруг доминирующей статуи Будды Майтреи и ориентированный на медитативную и ритуальную практику, тогда как Тубчен строился как большой зал для собраний, чтений и церемоний общины.
Роль монастыря Чёде в системе монастырей Ло-Мантанга связана с повседневной монашеской жизнью, обучением и ритуальной практикой общины.
Внутри этой триады Тубчен занимает роль соборного дукханга — зала собраний, рассчитанного на коллективную практику и публичные службы. Его иконография отражает философский аспект махаянского буддизма: стены украшены спокойными, элегантными изображениями будд и бодхисаттв, представляющими традиционное видение учения, в отличие от эзотерической, тантрической образности Джампы.
Ключевое отличие от Джампа Лхакханга связано с функцией пространства: Джампа задуман как лхакханг — храм-часовня, организованный вокруг доминирующей статуи Будды Майтреи и ориентированный на медитативную и ритуальную практику, тогда как Тубчен строился как большой зал для собраний, чтений и церемоний общины.
Роль монастыря Чёде в системе монастырей Ло-Мантанга связана с повседневной монашеской жизнью, обучением и ритуальной практикой общины.
Источники
Brown University Library. Jampa and Thubchen Gompās of Lo Manthang. Buddhist Temple Art Project
Darnal, P. Significant Heritages of Upper Mustang and Issue of Conservation. Dhaulagiri Journal of Sociology and Anthropology, 2017
Harrison, John. Kings' Castles and Sacred Squares: The Founding of Lo Monthang. in: Gutschow, Michaels, Ramble (eds) Sacred Landscape of the Himalaya. Vienna: Akademie, 2003
Selter, Elke. Upper Mustang: Cultural Heritage of Lo TsoDhun, UNESCO Kathmandu, 2007
Darnal, P. Significant Heritages of Upper Mustang and Issue of Conservation. Dhaulagiri Journal of Sociology and Anthropology, 2017
Harrison, John. Kings' Castles and Sacred Squares: The Founding of Lo Monthang. in: Gutschow, Michaels, Ramble (eds) Sacred Landscape of the Himalaya. Vienna: Akademie, 2003
Selter, Elke. Upper Mustang: Cultural Heritage of Lo TsoDhun, UNESCO Kathmandu, 2007
Автор: Дарья Уфимцева — экспедиционный лидер Mountain Quest. Работает в Непале и Верхнем Мустанге, сопровождает маршруты по Ло-Мантангу и другим регионам Гималаев с фокусом на культурную среду и историческую структуру мест.
Часто задаваемые вопросы
Что означает название «Тубчен Гомпа»?
Тубчен Гомпа — главный дукханг (зал собраний) Ло-Мантанга, предназначенный для коллективных молитв, чтений и религиозных советов.
В каком году был построен Тубчен Гомпа?
Строительство началось в 1468 году и было завершено к 1472 году.
К какой школе буддизма относится Тубчен Гомпа?
Тубчен принадлежит к школе сакья тибетского буддизма.
Какая главная фигура в Тубчен Гомпе?
Центральная фигура алтаря — Будда Шакьямуни, в окружении бодхисаттв и учителей традиции.
Можно ли посетить Тубчен сегодня?
Да, монастырь является действующим храмом, открытым для посетителей.
Тубчен Гомпа — один из ключевых памятников Верхнего Мустанга, позволяющий увидеть, каким было религиозное и интеллектуальное пространство королевства Ло в XV веке.
Посещение Тубчена органично встроено в маршруты Mountain Quest по Верхнему Мустангу и помогает осмысленно воспринимать другие монастыри региона.
Подробности экспедиции в Верхний Мустанг >